HOW TO MEASURE A ROOM AND DRAW A BASIC FLOOR PLAN
Before you begin, make sure you have these items ready:
- A sheet of paper
- A pencil
- A tape measure
DRAW A BASIC FLOOR PLAN
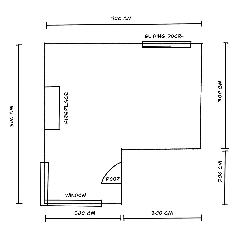
Make a top view drawing of the roomโs shape.

Take measurements of the full length of each indoor wall (in cm) and write them down on your plan.ย

Make a note of the placement of doors and windows (and which way it swings open).ย

Measure the length of each doorway and window.

Make a note of the distance from each window and door to the wall.

Use a compass to find the orientation of the floor plan.

Standing in the middle of the room.โTake a picture of each wall and label.
ELEVATION AND 3D PERSPECTIVE
As if facing them, sketch each walls .ย Write down the measurement of each wall and the height from the floor to the ceiling.

Write down the dimensions of every window and any other things or structures such as closets, heaters, fireplaces, and stairs.ย

You can also sketch the approximate location of outlets and lights.

Take measurements and photo of any pieces of furniture, art, cabinetry, bookcases, etc. that you’d like to keep in the space.
Please email your floor plan sketch and photos to beyondspacesdesignco@gmail.com.
